MIX Amsterdam

Omschrijving

Stadscentrum Osdorpplein: hét kloppende hart van Amsterdam Nieuw-West.

Met meer dan 150 winkels, van grote landelijke namen tot unieke boetieks, een divers horeca-aanbod en tal van voorzieningen is dit dé plek waar alles samenkomt. Een bruisende omgeving waar ontmoeten, ontdekken en genieten centraal staan.

Ondernemers creëren een warme en gastvrije sfeer die bezoekers steeds weer terug laat komen. Bovendien is Stadscentrum Osdorpplein uitstekend bereikbaar, wat het niet alleen een populaire bestemming maakt voor shoppers, maar ook een kansrijke locatie voor ondernemers.

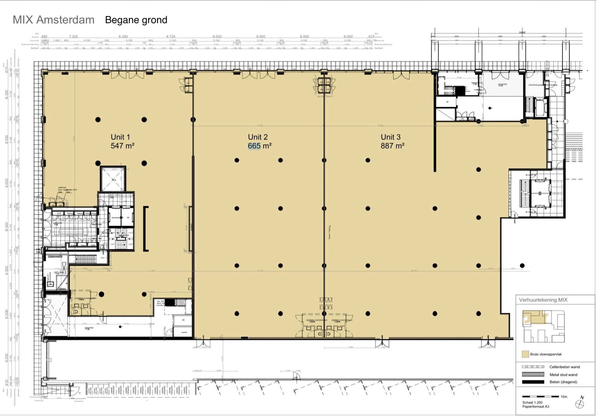
Nu beschikbaar: ca. 3.800 m² commerciële ruimte te huur, waarvan 2.100 m² op de begane grond en 1.700 m² op de verdieping. Beschikbaar vanaf Q2 2026.

Interesse? Vul onderstaand contactformulier in en wij nemen graag contact met u op.

Bestemming

  • Retail, Kantoor, Leisure, Sportschool en Maatschappelijk

Locatie

  • Osdorpplein, Amsterdam

Vloeroppervlakte

  • Begane grond: vanaf 547 tot 2100 m2 BVO

  • 1e verdieping: Vanaf 200 tot 1700 m2 BVO

Huurprijs

  • Op aanvraag

Oplevering

  • Q2 2026

Opleverniveau

  • Casco

Parkeren

  • 386 ondergrondse parkeerplaatsen

Meer weten over de winkels in Stadscentrum Osdorpplein? Klik dan hier: https://stadscentrum-osdorpplein.nl/shopping/

Bezoek de locatie

Adres

Osdorpplein, Amsterdam

 

Wilt u huren?

Vul ons formulier in en wij nemen z.s.m. contact met u op.